如果您正在尋找相關產品或有其他任何問題,可隨時撥打公司服務熱線,或點擊下方按鈕與我們在線交流!

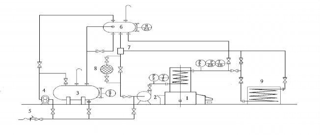
4噸燃氣鍋爐是許多工業和商業場所的重要設備之一。中正鍋爐作為國內知名品牌,在燃氣鍋爐行業擁有著良好的口碑和市場份額。其產品質量可靠,性能穩定,受到了廣大用戶的信賴和好評。在選擇燃氣鍋爐時,除了品牌之外,價格也是一個重要考量因素。一臺4噸燃氣鍋爐的價格取決于多個因素,包括規格型號、生產工藝、材料成本等等。不同廠家生產的燃氣鍋爐價格可能會有所差異,消費者在購買時需要綜合考慮產品質量和價格因素。
在工業生產中,4噸燃氣鍋爐扮演著至關重要的角色。它們被廣泛應用于各種領域,如化工廠、紡織廠、食品加工廠等。中正鍋爐作為國內知名的燃氣鍋爐制造商,其產品不僅在性能上表現出色,而且在節能環保方面也有著顯著的優勢。通過不斷的技術創新和質量管理,中正鍋爐始終保持著行業領先地位,為客戶提供高效、穩定的加熱解決方案。
談到燃氣鍋爐的價格,首先要考慮的是產品的質量和性能。中正鍋爐作為一家具有多年歷史的老??企業,其產品不僅在質量上有保障,而且在售后服務上也非常到位。這些都是影響燃氣鍋爐價格的重要因素。此外,市場競爭的激烈程度也會對價格造成一定影響。消費者在選購4噸燃氣鍋爐時,可以根據自身需求和預算進行綜合考量,選擇性價比較高的產品。
總的來說,4噸燃氣鍋爐在工業生產中具有不可替代的作用,中正鍋爐作為該領域的知名品牌,憑借著優秀的產品質量和完善的售后服務贏得了市場的認可。在選擇燃氣鍋爐時,除了關注品牌和性能外,價格也是一個重要考量因素。消費者可以根據自身需求和實際情況選擇適合的產品,以確保生產運營的順利進行。
文章【4噸燃氣鍋爐】由鍋爐廠整理發布,轉載請注明:http://www.yanphp.com/hyzx/12000.html